VILLA DI NUOVA REALIZZAZIONE
Descrizione
Rif. 012 – In comoda zona al limitare del centro, ben servita e vicina ai servizi, su palazzina di nuova realizzazione con ogni attenzione alle disposizioni legate al contenimento dei consumi proponiamo villa libera su tre lati ed esposta ad ovest, così composta:
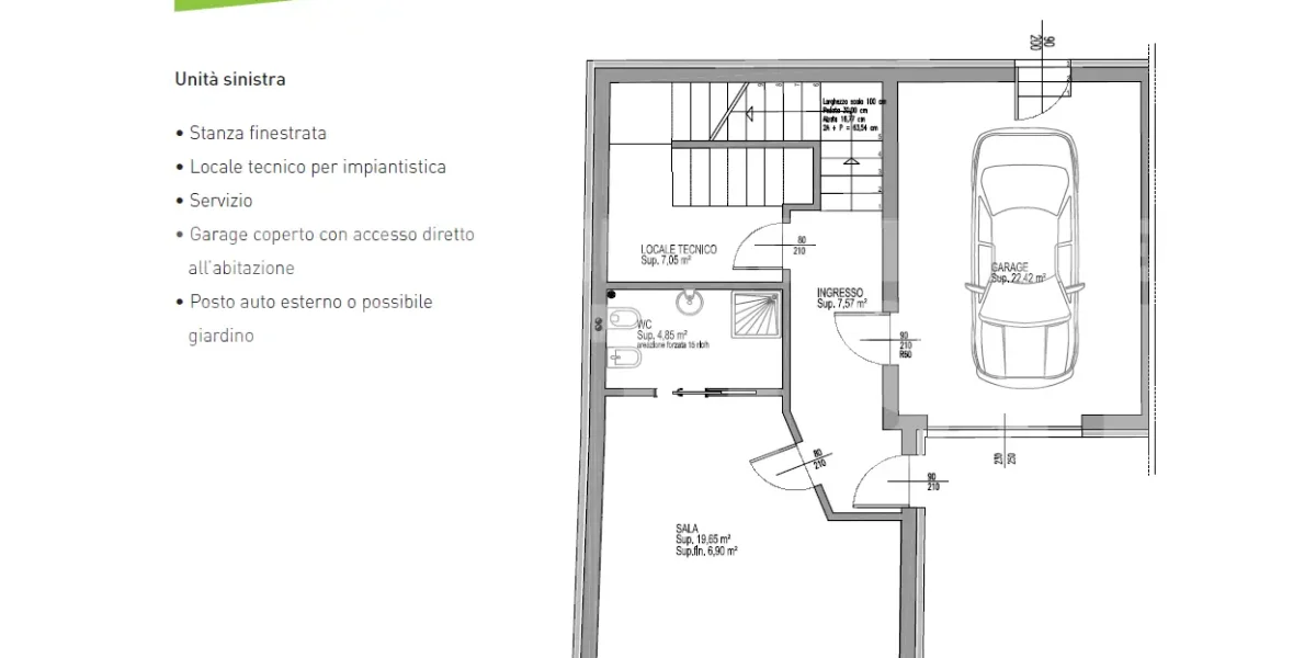
PIANO TERRA dove troviamo un garage di 22 mq, un posto auto esterno, un locale tecnico con centrale termica e deposito + stanza con bagno (utilizzabile sia come camera da letto che studio oppure stube/taverna);
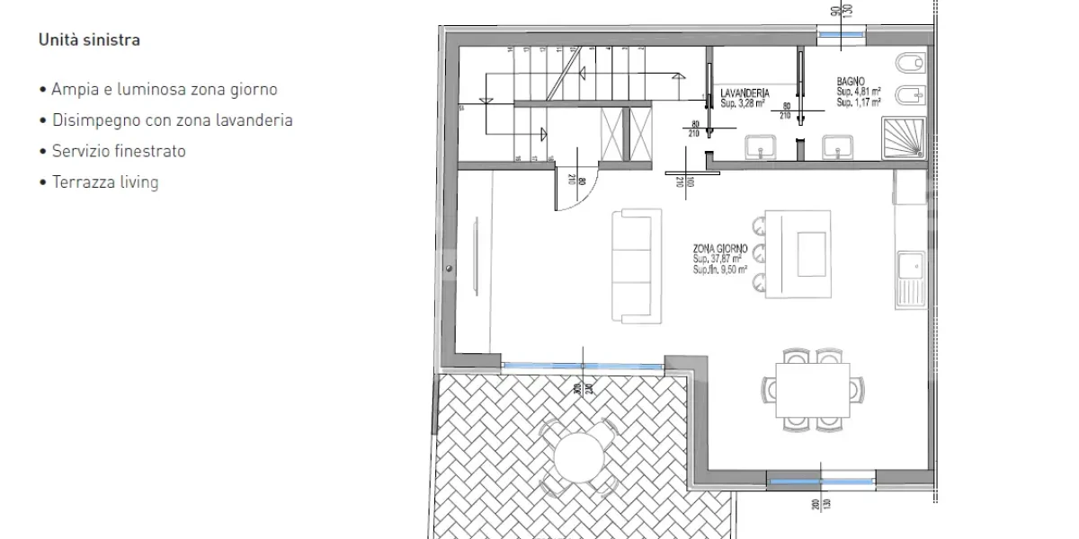
PIANO PRIMO: ingresso nella zona living con accesso al terrazzo di 22 mq ottimamente esposto – oltre alla luminosissima cucina, lo spazioso soggiorno e l’area pranzo troviamo un ambiente per la lavanderia + bagno giorno con finestra;
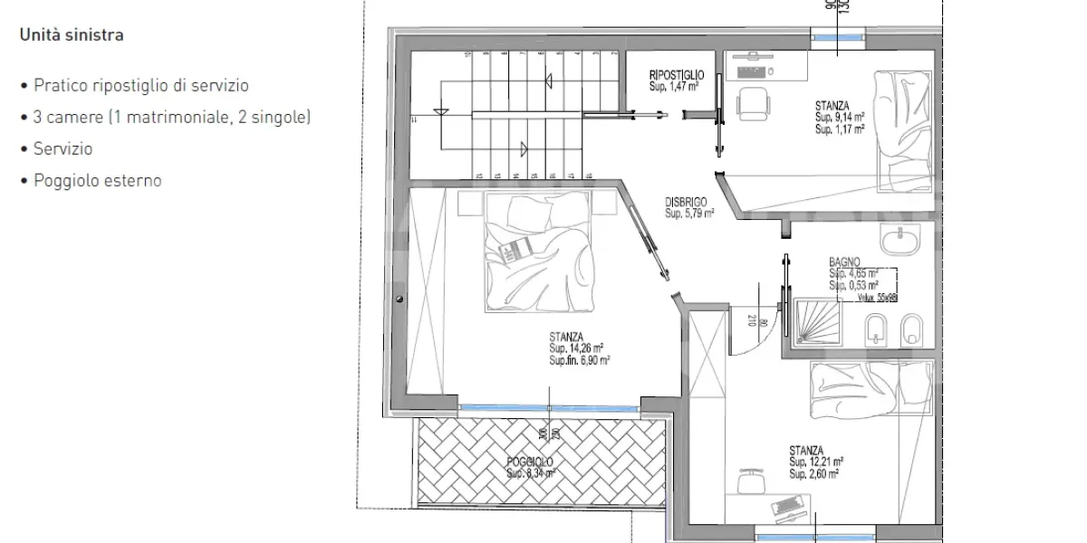
PIANO SECONDO: tre camere da letto (12 + 14 + 9 MQ), un bagno con finestra a tetto + ripostiglio e terrazzo panoramico.
Riscaldamento con sistema radiante a pavimento, edificio a basso consumo con pompa di calore + pannelli fotovoltaici, cappotto termoisolante, finestre e porte-finestre TRIPLO VETRO- con ricambio d’aria VMC, tapparella in alluminio con comando elettronico – PREDISPOSIZIONE PER IMPIANTO DI ALLARME
Si tratta di una soluzione con recupero fiscale.
Indirizzo
-
Indirizzo Levico Terme
-
Nazione Italia
-
Provincia Trento
-
Zona Alta Valsugana
-
Comune Levico Terme
Panoramica
- ID Proprietà 012
- Prezzo € 560.000
- Tipologia Schiere - Bifamigliare - Ville
- Stato Proprietà In vendita, Nuova costruzione
- Nr. locali 4
- Camere da letto 4
- Bagni 3
- Anno di Costruzione 2025
- Superficie 180 m2
- Garages 1
- Dimensione Garage 22 m2
- Certificazione energetica Classe A+ Indice: 25,00 Kw/h mq anno
Contattaci per info e/o appuntamento
Agenzia Immobiliare Battisti
Agente Assegnato all'Oggetto
