AMPIO APPARTAMENTO CON GIARDINO
Descrizione
Rif. 061 – In posizione semicentrale a Caldonazzo, in tranquilla zona residenziale all’interno di un edificio di poche unità abitative, proponiamo un appartamento di ampia metratura caratterizzato da finiture di pregio e grande attenzione ai dettagli.
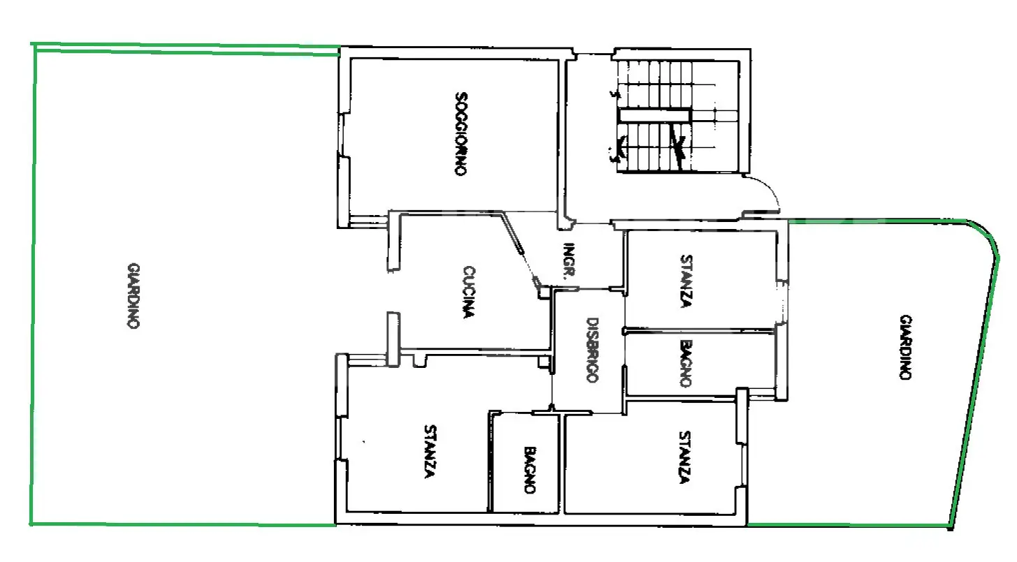
L’immobile si sviluppa al piano terra per circa 140 mq, con esposizione sud-ovest, e accoglie con un ingresso che conduce a un luminoso soggiorno e a una cucina abitabile, entrambi affacciati su un curato giardino privato di circa 95 mq esposto a sud, arricchito da un elegante spazio winter garden di circa 20 mq. La zona notte, ben separata, comprende tre stanze di cui una matrimoniale e due di dimensioni generose, oltre a un comodo disimpegno e due servizi, di cui uno finestrato. Completa la proprietà un secondo giardino di circa 35 mq esposto a ovest, ideale per momenti di relax all’aperto.
Al piano interrato è presente un garage per un’auto con annesso locale hobby/cantina di oltre 20 mq, perfetto come spazio multifunzionale.
L’immobile è dotato di riscaldamento autonomo con caldaia a condensazione e impianto a pavimento, cappotto termico, aspirazione centralizzata e impianto di allarme, garantendo comfort abitativo ed efficienza energetica. Il giardino, particolarmente riservato, dispone inoltre di predisposizione per barbecue a gas con doppia derivazione e impianto di irrigazione.
Indirizzo
-
Indirizzo Caldonazzo
-
Nazione Italia
-
Provincia Trento
-
Zona Alta Valsugana
-
Comune Caldonazzo
-
Postal code/ZIP 38052
Panoramica
- ID Proprietà 061
- Prezzo € 430.000
- Tipologia Appartamenti
- Stato Proprietà In vendita
- Nr. locali 7
- Camere da letto 3
- Bagni 2
- Superficie 140 m2
- Garages 1
- Dimensione Garage 18 m2
- Certificazione energetica Classe C Indice: 115,61 Kw/h mq anno
- Nr. posti auto 1
Contattaci per info e/o appuntamento
Agenzia Immobiliare Battisti
Agente Assegnato all'Oggetto
