PORZIONE DI CASA con terreno di mq 700
Descrizione
RIF. 020 – In tranquilla posizione, proponiamo porzione di casa libera su tre lati con esposizione Sud-Est-Nord e 733 mq di terreno, disposta su tre livelli, in parte ristrutturata e in parte da risanare.
A piano terra di 65 mq troviamo un garage, grande cantina, il deposito in legno , un cortile uso parcheggio per 3-4 auto e il terreno privato in collina.
A primo piano di 60 mq con accesso da scala esterna in pietra troviamo quattro locali da ristrutturare.
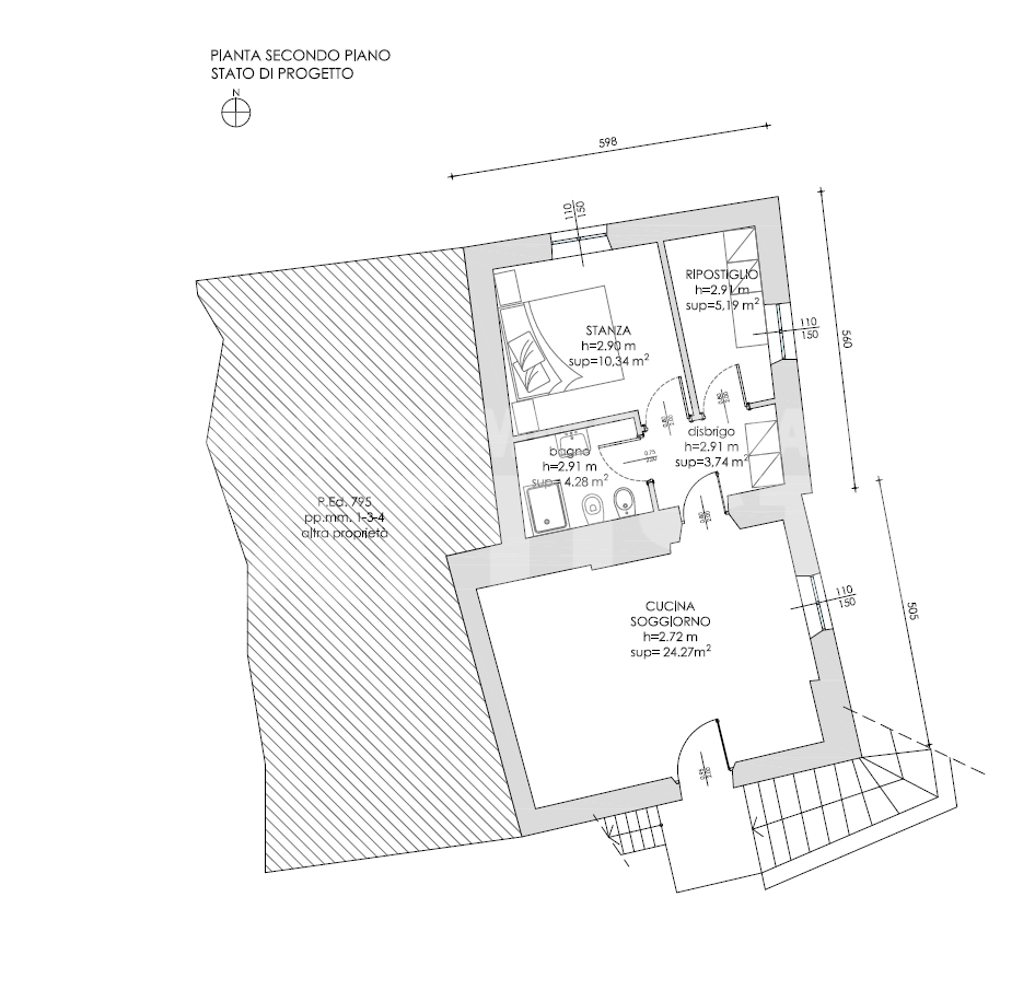
A secondo piano un appartamento quasi ultimato di 60 mq con terrazzo d’ingresso, soggiorno con cottura, bagno, stanza e stanzino uso guardaroba (anche questo piano gode dell’ accesso dalla scaletta in pietra).
A piano sottottetto c’è una soffitta di 40 mq solo uso deposito/magazzino per la scarsa altezza.
L’ immobile è stato ristrutturato al secondo piano compreso anche il tetto, pertanto ora è disponibile solo un piccolo appartamento ma risanando il primo piano, si può creare un alloggio su due piani di 115/120 mq oppure ricavare al primo piano una seconda unità immobiliare .
Impianti autonomi, non ci sono parti comuni ad eccezione di una porzione di cortile esterno uso strada.
Soluzione interessante per chi cerca una soluzione quasi indipendente con spazi esterni e terreno nelle vicinanze di Borgo Valsugana.
Indirizzo
-
Indirizzo Olle
-
Nazione Italia
-
Provincia Trento
-
Zona Bassa Valsugana
-
Comune Borgo Valsugana
Panoramica
- ID Proprietà 020
- Prezzo € 90.000
- Tipologia Porzioni - Rustici - Baite
- Stato Proprietà In vendita
- Nr. locali 12
- Camere da letto 4
- Bagni 1
- Superficie 173 m2
- Prefisso 733 m2
- Certificazione energetica Classe E Indice: 230,50 Kw/h mq anno
- Nr. posti auto 4
Contattaci per info e/o appuntamento
Agenzia Immobiliare Battisti
Agente Assegnato all'Oggetto
