EDIFICIO RUSTICO INDIPENDENTE
Descrizione
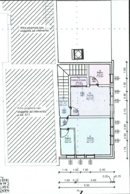
RIF 023-A due minuti da Borgo Valsugana, nel paesino di Castelnuovo in posizione centrale, quindi vicina a tutti i servizi del paese, proponiamo EDIFICIO RUSTICO INDIPENDENTE su tre lati con cortile privato di 165 mq.L’immobile attualmente ha una destinazione a magazzino “ex stalla e fienile”, ma viene venduto già con un progetto approvato dal Ufficio tecnico del comune, con la quale si prevede la ristrutturazione di una casa abitativa residenziale ad alto risparmio energetico disposta su tre piani, pertanto si può ricavare: al PIANO TERRA di mq 69 un portico/garage, 2 locali uso cantina, lavanderia/centrale termica.
Al PRIMO PIANO di 69 mq, si accede attraverso una scala indipendente e troviamo un’ampia zona giorno tipo living con soggiorno, cucina con poggiolo, bagno più locale studio o terza stanza, poi attraverso scala interna si accede al PIANO MANSARDATO di 49 mq, dove si può ricavare altre due grandi camere da letto con altri due bagni e cabina armadio.
Il cortile privato esterno garantisce autonomia non ci sono parti comuni e può essere utilizzato per un parcheggio privato più parte ad uso giardino verde.
Indirizzo
-
Indirizzo Borgo Valsugana
-
Nazione Italia
-
Provincia Trento
-
Zona Bassa Valsugana
-
Comune Borgo Valsugana
Panoramica
- ID Proprietà 023
- Prezzo € 70.000
- Tipologia Porzioni - Rustici - Baite
- Stato Proprietà In vendita
- Superficie 165 m2
